আজকে আমরা ব্যবহারিকঃ অটোক্যাডে একটি কক্ষের প্ল্যান অঙ্কন সম্পর্কে আলোচনা করবো। যা আর্কিটেকচার ড্রাফট উইথ ক্যাড – ২ এর প্রথম পত্রের ব্যবহারিক অংশের অন্তর্গত।

Table of Contents
ব্যবহারিকঃ অটোক্যাডে একটি কক্ষের প্ল্যান অঙ্কন
ড্র (Draw), ও মডিফাই (Modify) টুলবার-এর সাহায্যে অটোক্যাডে মাপ অনুযায়ী একটি কক্ষের প্ল্যান অঙ্কন করা
অটোক্যাড মাপ অনুযায়ী একটি কক্ষের প্ল্যান অঙ্কনের জন্য প্রয়োজনীয় কমান্ডসমূহ ধারাবাহিকভাবে সংক্ষিপ্তাকারে নিচে লিখিত হল:
Command: I ←! অথবা, ড্রয়িং টুল বারের আইকন এ ক্লিক করে,
Specify Start Point: 0,0 বা ড্রয়িং এরিয়া এর যে কোনো বিন্দুতে A তে ক্লিক, (F8 চেপে অর্থো অন করে নিতে হবে
Specify Next Point: 11-30 ! (ডানে মাউস সরিয়ে নিয়ে, B বিন্দু হবে) এবার B থেকে C তে যাওয়ার জন্য,
Specify Next Point: 13-4 4 (উপরে মাউস সরিয়ে নিয়ে এটি C বিন্দু হবে,
Specify Next Point: 11-3″ (বায়ে মাউস সরিয়ে নিয়ে, এটি D বিন্দু হবে,)
D থেকে G তে যাওয়ার জন্য
Specify Next Point: 134 4 (নিচে মাউস সরিয়ে নিয়ে এটি G বিন্দু হবে)
- এভাবে পুরো কাজটি সম্পন্ন করার পর দুইবার এন্টার করার পর কমান্ড থেকে বের হতে হবে।
অথবা
Command: re ! বা ড্র টুল বারের আইকন এ ক্লিক করতে হবে।
Specify first corner point or [Chamfer/ Elevation / Fillet / Thickness / Width ]: 0,0 বা ড্রয়িং এরিয়ার যে কোনো একটি বিন্দুতে ক্লিক
Specify other corner: point [Area/Di- mension/Rotation]: @11′-3″,13′-4″
উভয় ক্ষেত্রেই 11-3″ x 13-4″ মাপের চতুর্ভুজ বা আয়তক্ষেত্র অঙ্কিত হবে।

এবার অফসেট করে দেয়াল অঙ্কন
Command: o বা মডিফাই টুল বারের আইকন ক্লিক করতে হবে।
Specify offset distance or [ through / Erase / Layer] <0>:5 <!
Select object to offset or [ Exit/Undo]: AB তে ক্লিক বা আয়তক্ষেত্র দিয়ে আঁকলে সেটিতে ক্লিক (বস্তুটি সিলেক্ট হলে ডটেড দেখাবে)।
Specify point on side to offset or [ Exit/ Multiple/Undo]: সিলেক্ট করা রেখার নিচের দিকে ক্লিক করতে হবে।
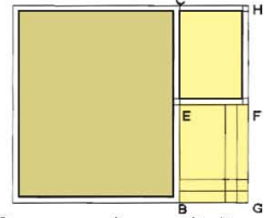
আয়তক্ষেত্র দিয়ে আঁকলে একবারেই অফসেট হবে (চিত্র) আর রেখা দিয়ে আকলে প্রতিটি রেখা আলাদা করে ক্লিক করে ক্ষেত্রের বাইরের দিকে ক্লিক করতে হবে (চিত্র)।


রেখা দিয়ে অঙ্কন করলে কোণসমূহ চ্যাম্ফার করে দূরত্বের মান শূন্য দিয়ে মিলিয়ে দিতে হবে। যেমন—
Command: cha ! বা মডিফাই টুল বারের আইকন _ এ ক্লিক করতে হবে।
Select first line or (Undo/Polyline/Distance/Angle/Trim/mEthod/Multiple]: d
Specify first chamfer distance <0′-0″>:0
Specify second chamfer distance <0′-0″>: 0
Select first line or [Undo / Polyline / Distance / Angle / Trim/mEthod / Multiple]: ১ম রেখাটিকে সিলেক্ট
Select second line or shift select to apply corner : ২য় রেখাটিকে সিলেক্ট
কক্ষের বাইরে বারান্দা ও টয়লেট অঙ্কন
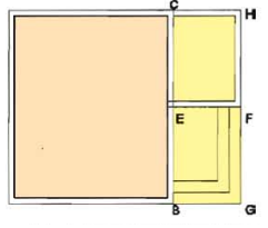
- পূর্বের অফসেট নিয়মানুযায়ী AB রেখা থেকে 5′-0″ দূরত্বে অফসেট করে একটি রেখা GH অঙ্কন করতে হবে।
- AB রেখা থেকে GH রেখা পর্যন্ত লাইন কমান্ডের সাহায্যে EF রেখা টানতে হবে।
- অনুরূপভাবে B বিন্দু ও C বিন্দু থেকে GH রেখা পর্যন্ত লাইন কমান্ডের সাহায্যে রেখা টানতে হবে ।
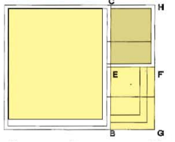
- অঙ্কিত রেখাসমূহ থেকে আবার 5″ দূরত্বে অফসেট করে চিত্রানুরূপ (চিত্র) রেখা

- ধাপ অঙ্কনের জন্য GF ও BG থেকে 10″ দূরত্বে অফসেট করে চিত্রানুরূপ রেখা অঙ্কন করতে হবে।
- এবার কোণসমূহ চ্যাফার করে দূরত্বের মান শূন্য দিয়ে মিলিয়ে দিতে হবে।
- চ্যাঙ্কার করার জন্য cha লিখে এন্টার করে পূর্বে চ্যাঙ্কার করা দূরত্ব 0,0 অনুযায়ী কোণাকুণি রেখাদ্বয়কে পরপর ক্লিক করতে হবে। তাহলে চিত্রানুরুপ (চিত্র) ভিউ তৈরি হবে ।

দরজা অঙ্কন করার জন্য
- দরজা অঙ্কনের জন্য EF বরাবর দেয়ালের বারান্দার পাশে কক্ষের দরজার মাপে 40″ অফসেট করতে হবে।
- টয়লেটের দরজা অঙ্কনের জন্য EF বরাবর দেয়ালের ভিতরের বা টয়লেটের দিকে 30″ মাপে অফসেট করতে হবে।

- অফসেটকৃত রেখা থেকে ট্রিম (Trim করে দরজার অংশ ফাঁকা করতে হবে। এতে চিত্রানুরূপ দেখা যাবে (চিত্র- ৭.১.৭)।
জানালা অঙ্কন করার জন্য
- জানালা অঙ্কনের জন্য AD দেয়ালের মধ্য বিন্দু J বরাবর লাইন কমান্ডের সাহায্যে একটি রেখা অঙ্কন করতে হবে।
- J রেখার উভয় পাশে 30″ মাপে অফসেট করতে হবে।
- একই ভাবে AB দেয়ালের মধ্য বিন্দু I একটি রেখা ও I রেখার উভয় পাশে 30″ মাপে অফসেট করতে হবে। এতে চিত্রানুরূপ দেখা যাবে (চিত্র)।

- দরজার অনুরূপভাবে অফসেট কৃত রেখা থেকে ট্রিম (Trim) করে দরজার অংশ ফাঁকা করতে হবে। এতে চিত্রানুরূপ দেখা যাবে (চিত্র)।

অটোক্যাডে একটি কক্ষের প্ল্যানে দরজা অঙ্কন
- দরজার চৌকাঠ অঙ্কনের জন্য EF দেয়ালের এক পাশে ফাঁকা অংশে ৪ বিন্দু থেকে লাইন কমাণ্ডের সাহায্যে ab, be, ad, de, of, রেখা যথাক্রমে 21/2″, 31/2, 21/2″, 11/2″, 2″ মাপে অঙ্কন করতে হবে।


- মিরর কমান্ডের সাহায্যে দরজার চৌকাঠটির উল্টা প্রতিবিম্ব দরজার ফাঁকা অংশের অপর পাশে আঁকতে হবে যা একইভাবে লাইন দিয়েও জাঁকা যায়।
- পাল্লা অঙ্কনের জন্য চৌকাঠটির de রেখা বরাবর সরল রেখা আঁকতে হবে। রেখাটিকে 132 অফসেট করে আরেকটি রেখা আঁকতে হবে।
- এবার de রেখার e বিন্দুকে কেন্দ্র করে চৌকাঠটির অপর পাশের বিন্দু বরাবর বিন্দু পর্যন্ত ব্যাসার্ধ নিয়ে আঁকতে হবে (চিত্র )।

- এখন ট্রিম কমান্ড দিয়ে অপ্রয়োজনীয় অংশ কেটে ফেলে চিত্রানুরূপ দরজার সিম্বল অঙ্কন করতে হবে (চিত্র- ৭.২.৪)।

অটোক্যাডে একটি কক্ষের প্ল্যানে জানালা অঙ্কন
- অ্যালুমিনামের জানালা অঙ্কনের জন্য প্রান্তবিন্দু গুলো ও মধ্যবিন্দু গুলো যাগে করতে হবে।
- এবার 2″ ও 1″ করে চিত্রানুরুপ (চিত্র-৭.৩.১) অফসেট করতে হবে ।
- এবার sliding করার জন্য ট্রিম (Trim) ও ইরেজ (Erase) করে চিত্রানুরূপ (চিত্র- ৭.৩.২) করতে হবে বেন sliding পাল্লা বোঝা বার।




অটোক্যাঙ্কে অঙ্কিত কক্ষটির (চিত্র-৭.৩.৩) এলিভেশন অঙ্কন
এলিভেশন অন করার জন্য
- একটি ভূমি রেখা এঁকে এর উপর কক্ষের প্ল্যান-এর প্রাক্তবিন্দুগুলো থেকে অর্থো অন করে লম্ব রেখা আঁকতে হবে।
- ভূমি রেখা থেকে 1-6 প্লিস্থ লেভেল অফসেট করতে হবে।
- এভাবে প্লিন্থ লেভেল রেখা থেকে 2-6* সিল লেভেল, 1-6 লিন্টেল লেভেল, 160° ফ্লোর লেভেল ও 12-6 প্যারাপেট নেভেল অফসেট করতে হবে।
রেখাসমূহ টানা হলে এবং অঞ্চলেট করা হলে চিত্রানুরূপ (চিত্র) দেখা যাবে ।

- এখন ট্রিম কমান্ড দিয়ে প্রয়োজনীয় অংশ কেটে ফেলে চিত্রানুরূপ অঙ্কন করতে হবে (চি – 9.8.2 ) ।
- লাইন কমান্ড দিয়ে ধাপ গুলো অঙ্কন করতে হবে।
ট্রিম করা হলে এবং রেখাসমূহ টানা হলে চিত্রানুরূপ (চিত্র-৭.৪.১) দেখা যাবে।

- এবার জানালার জন্য 2” করে চিত্রানুরূপ (চিত্র-৭.৪.৩) অফসেট করতে হবে।
- সানশেডের জন্য 9″ করে অফসেট করতে হবে ।
- পাশের সানশেডের জন্য সম্মুখের সানশেডের শেষ বিন্দুদ্বয় থেকে বাইরের দিকে রেখা টানতে হবে।
- এবার দেয়ালের রেখা থেকে 20″ অফসেট করতে হবে (চিত্র-৭.৪.)।
- ফ্লোর বা ছাদের গ্রুন্ড বোঝানোর জন্য ছাদের লেভেলের রেখাকে 5” অফসেট করতে হবে।
- পিস্থ লেভেলেও অনুরুপভাবে গুস্ত দেয়া যেতে পারে ।


- এবার জানালা স্লাইডিং বোঝানোর জন্য ট্রিম করে চিত্রানুরূপ (চিত্র-৭.৪.৪) করতে হবে।
- সানশেডের জন্য অনুরুপভাবে ট্রিম করে সম্মুখ ও পাশের সানশেড তৈরি করতে হবে।

- পিস্থ লেভেলে গ্রুন্ড দেয়া হলে এবং প্রয়োজনীয় অংশ গাঢ় করা হলে এলিভেশনটি চিত্রের (চিত্র) ন্যায় দেখা যাবে।
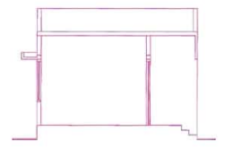
কক্ষটির অঙ্কিত Plan থেকে Section সেকশন অঙ্কন
কক্ষটির অঙ্কিত Plumn থেকে Section সেকশন অঙ্কন করার জন্য
- কক্ষের প্ল্যান এর সুবিধাজনক স্থানে বরাবর সবচেয়ে বেশি দেয়াল, রা, জানাगा, বারান্দা ইত্যাদি উপাদান কাটা পড়ে সেই বরাবর সেকশন লাইন টেনে নিতে হবে (চিত্র- A-A রেখা)।
- সেকশন লাইনটিতে সেকশনের পর কোন দিকে দেখতে হবে সেই দিকে তীর বা অনুরূপ চিহ্ন দিতে হবে ।
- একটি ভূমি রেখা এঁকে এর উপর সেকশন লাইন কক্ষের প্ল্যান এর যে বিন্দুগুলোতে ছেদ করে সেখান থেকে অর্দো অন করে লম্ব রেখা আঁকতে হবে।
- ভূমি রেখা থেকে 1-3 গ্লিহ পেতেন অফসেট করতে হবে।
- এভাবে পিছ লেভেল রেখা থেকে 26 সিল লেভেল, 7-0″ লিন্টেল লেভেল, 9-7* ফ্লোর/সিলিং লেভেল, 5* ফ্লোর থিকনেস, 12-6 প্যারাপেট লেভেল অফসেট করতে হবে।
রেখাসমূহ টানা হলে এবং অফসেট করা হলে চিত্রানু- রূপ (চিত্র) দেখা যাবে।

- এখন টিম কমান্ড দিয়ে অপ্রয়োজনীয় অংশ কেটে ফেলে চিত্রানুরূপ অঙ্কন করতে হবে (four 9.4.2) 1
- লাইন কমান্ড দিয়ে ধাপগুলো অঙ্কন করতে হবে।
- লাইন কমান্ড দিয়ে বা অফসেট করে সানশেড অক্ষম করতে হবে।
ট্রিম করা হলে এবং রেখাসমূহ টানা হলে চিত্রানুরূপ (চিত্র) দেখা যাবে।
- এবার জানালার ও দরক্ষার জন্য 2″ করে চিত্রানুরূপ (চিত্র) অফসেট করতে হবে।
- ড্রপ ওয়ালের জন্য 3-0″ করে অফসেট করতে হবে।
- লিন্টেলের জন্য 6″ করে অফসেট করতে হবে।
- পিছ লেভেলের নিচের অংশ ট্রিম করতে হবে ।
- এখন ট্রিম কমান্ড দিয়ে। অপ্রয়োজনীয় অংশ কেটে ফেলে দিয়ে চিত্রানুরূপ জানালার ও দরজার সেকশন অঙ্কন করতে হবে (চিত্র)



- এখন ভূমি ও প্লিস্থের নিচে হ্যাচ করার জন্য একটি লম্ব রেখা টেনে কপি বা অফসেট কমান্ড দিয়ে চিত্রানুরূপ লাইনসমূহ অঙ্কন করতে হবে (চিত্র)।
- অথবা হ্যাচ কমান্ডের সাহায্যে করা যায়। সেক্ষেত্রে সামনে, পিছনে ও নিচে লাইন টেনে এরিয়াটিকে অবন্ধ করে নিয়ে হ্যাচ করতে হবে।

ভূমি ও প্লিস্থের নিচে ব্যাচ করার কমান্ড
Command: ht! বা টুল বারের আইকন | এ ক্লিক করতে হবে।
একটি Hatch & Gradient ডায়ালগ বক্স আসবে,
- এখান থেকে হ্যাচের ধরন ঠিক করার জন্য প্যাটার্ন (Pattern) থেকে বা পাশের ছোট পিক বক্সে ক্লিক করতে হবে। স্ক্রিনে আরেকটি Hatch pattern palette ডায়লগ বক্স আসবে,
- সেখান থেকে সুবিধা মত হ্যাচ টাইপ (ANSI 31 ) পছন্দ করে Angle 45 এবং Scale 24 বা 36 লিখে দিতে হবে।
- এবার Add Pick Point এর পিক বক্সে ক্লিক করলে স্ক্রিনের যে এরিয়া দেখাবে সেখানে যে অংশে হ্যাচ করতে হবে সেই এরিয়ার মধ্যে ক্লিক করতে হবে। (উল্লেখ্য যে আবদ্ধ এরিয়া ছাড়া হ্যাচ হবে না।)
- এরিয়া সিলেক্ট হলে ডটেড দেখাবে, এবার প্রিভিউতে (Preview) ক্লিক করে হ্যাচ কেমন হবে দেখে নিতে হবে, ঠিক থাকলে ok করে কমান্ড থেকে বের হতে হবে।
- আর ঠিক না হলে Angle এবং Scale এর মান পরিবর্তন করে আবার প্রিভিউতে দেখে প্রয়োজনীয় সংশোধন করে নিতে হবে।
- এবার Dtext বা t লিখে এন্টার করে, টেক্সট এর উচ্চতা লিখে এন্টার, রোটেশন অ্যাঙ্গেল এর যা 0 লিখে এন্টার প্রয়োজনীয় টেক্সট লিখে ! (দুইবার এন্টার করলে কমান্ড থেকে বের হয়ে আসবে)। এভাবে ড্রয়িং টাইটেল লিখতে হবে।
এভাবে সেরাল ও ফ্লোরেও হ্যাচ করতে হবে। দেয়ালের ক্ষেত্রে Angle 0 সুবিধা যত ক্ষেল ঠিক করে নিতে হবে। সম্পূর্ণ হ্যাচ হয়ে গেলে, ড্রয়িং টাইটেল লিখলে ও প্রয়োজনীয় ছেদিত অংশ গাঢ় করলে চিত্রের ন্যায় সেকশনটি অঙ্কিত হবে।

