আজকের পাঠে আমরা আলোচনা করব “বহুতল আবাসিক ইমারতের Elevation ও Section অঙ্কন” বিষয়টি নিয়ে। স্থাপত্য ও প্রকৌশল অঙ্কনে Elevation (উচ্চদৃশ্য) ও Section (ছেদদৃশ্য) অত্যন্ত গুরুত্বপূর্ণ অংশ, যা একটি ভবনের নকশাকে বাস্তব রূপ দিতে সাহায্য করে। বিশেষত অটোক্যাড (AutoCAD) সফটওয়্যারে এই অঙ্কনগুলো ভবনের গঠন, উচ্চতা, দেয়াল, জানালা, দরজা, সিঁড়ি এবং অন্যান্য কাঠামোগত উপাদান সঠিকভাবে উপস্থাপন করতে ব্যবহৃত হয়। এই পাঠে ধাপে ধাপে ব্যাখ্যা করা হয়েছে— কীভাবে একটি বহুতল আবাসিক ভবনের Elevation ও Section অঙ্কন তৈরি করতে হয়, কীভাবে বিভিন্ন অংশ ট্রিম, অফসেট, হ্যাচ ও মাপ প্রদান করতে হয়।
স্থাপত্য শিক্ষার্থী ও প্রকৌশলীদের জন্য এটি একটি বাস্তবমুখী দিকনির্দেশনা, যা ভবনের ডিজাইন থেকে নির্মাণ পর্যন্ত প্রতিটি ধাপে সহায়ক ভূমিকা পালন করবে।
Table of Contents
বহুতল আবাসিক ইমারতটির Elevation ও Section অঙ্কন
অটোক্যাডে বহুতল আবাসিক ইমারতটির Elevation অঙ্কন ও হ্যাচ করা
অঙ্কন প্রশালি :
অটোক্যাডে বহুতল আবাসিক ইমারতটির Elevation অঙ্কন ও হ্যাচ করার জন্য প্রয়োজনীয় ধাপসমূহ ধারাবাহিকভাবে সংক্ষিপ্তাকারে নিচে লিখিত হল-
- বহুতল আবাসিক ইমারতটির সম্মুখের কিছু অংশ কপি করে ড্রয়িং স্ক্রিনের অন্য স্থানে নিয়ে বসাতে হবে। একে অর্থো অন করে 90° কোণে রোটেট করে নিতে হবে। এবার লাইন কমান্ড দিয়ে অনেকটা নিচে একটি অনুভূমিক লাইন আঁকতে হবে।
- প্রতিটি ভাগ বা ব্রেক পরেন্ট থেকে নিচের লাইন পর্যন্ত লম্বা লাইন টানতে হবে।
- এবার নিচের লাইনটি ১০ পর পর ৬ তলার জন্য ৬ বার অফসেট করতে হবে।
- এরপর দেয়াল বরাবর অঙ্কিত বাড়তি লাইনসমূহ টিম করে ফেলতে হবে।।
- ট্রিম করার পর এলিভেশনটি চিত্রের (চিত্র-৩.১.২) মত দেখাবে।

চিত্র- লম্ব ও অনুভূমিক লাইন টানার পর
- এবার অফসেট ও লাইন কমান্ড দিরে চিত্রের (চিত্র-৩.১.৩) মত মাগ অনুযারী সবচেরে উপরের দুটি ফ্লোরের বারান্দায় স্লাইডিং দরজা ও রেলিং বা নিজের পছন্দমত রেলিং আঁকতে হবে। অঙ্কনের পর অপ্রয়োজনীয় ও বাড়তি লাইন ডিলিট ও ট্রিম করে ফেলতে হবে।

অটোক্যাডে বহুতল আবাসিক ইমারতটির Section অঙ্কন ও হ্যাচ করা
অঙ্কন প্রশালি :
অটোক্যাডে বহুতল আবাসিক ইমারতটির Section অঙ্কন, হ্যাচ করা ও মাগ লিখার জন্য প্রয়োজনীয় ধাপ সমূহ ধারাবাহিকভাবে সংক্ষিপ্তাকারে নিচে লিখিত হল –
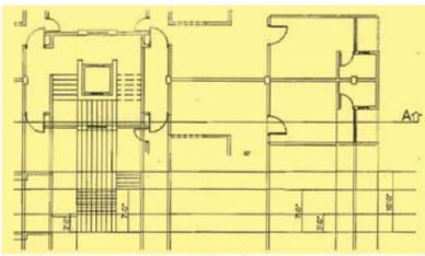
- প্ল্যানের A বরাবর (চিত্র-৩.৩.১) একটি সেকশন লাইন একে নিতে হবে। এবার লাইনটি প্ল্যানের যে সকল ওয়াল ছেদ করে সেই ছেদ বিন্দুসমূহ থেকে লম্বা লাইন টানতে হবে।
- এবার একটি ফ্লোর লাইন হিসাবে অনুভূমিক লাইন এঁকে নিতে হবে। এখন এই লাইনটিকে পর পর 103, 36,7- অফসেট করতে হবে।

চিত্র- সেকশনের জন্য বিভিন্ন লাইন অঙ্কন ও অফনেট কর
- সিঁড়ির ধাপ বরাবর লম্বা লাইন এঁকে চিত্রের মত দুইপাশের ফ্লাইট ও ধাপের জন্য ৬” পরপর অফসেট করে নিতে হবে।
- লাইনসমূহ থেকে বাড়তি বা অপ্রয়োজনীয় অংশ ি করে ফেলতে হবে। যে সকল দরজা এলিভেশনে দেখা যাচ্ছে সেই দরজাসমূহের এলিভেশন এবং সেকশন অংশের দরজা আলাদা করে এঁকে নিতে হবে।
- টয়লেটের জানালা চিত্রের মত অনুভূমিক লাইন দিয়ে ও অফসেট করে এঁকে নিতে হবে
- লাইন বা রেক্টেঙ্গেল কমান্ডের সাহায্যে চিত্রের মত মাপ অনুযারী বারান্দার রেলিং আঁকতে হবে। এখানে রেক্টেঙ্গেল-এর পরিবর্তে বৃত্ত বা সারকেল দিয়েও একই মাপে রেলিটি অঙ্কন করা যায়।
- ইমারতটি সাধারণ কলাম বিমে তৈরি বলে এতে বিম এর সেকশন ও এলিভেশন চিত্রের মত আঁকতে হবে।
- ছাদ বা ফ্লোর 4.5″ এবং লিস্টেল 6″ এবং বিষ 15 ” পুরুত্ব দেয়া হয়েছে। ড্রপ ওরাল ও পুরু এবং ছা থেকে লিন্টেল লেভেল পর্যন্ত নিচের দিকে আঁকতে হবে । অফসেট করে আঁকার পর অপ্ররোজ- নীর অংশ ট্রিম করে ফেলতে হবে।
- লাইন ও অফনেট কমান্ডের সাহায্যে সিঁড়ির পাশের দেয়ালের শেলফটি চিত্রের মত মাপে এঁকে নিতে হবে এবং ট্রিম করে সিঁড়ির ফ্লাইট ও ধাপসমূহ এঁকে নিতে হবে।
- যেহেতু পাঁচতলা পর্যন্ত একই ধরনের ফ্লোর ভাই এটিকে কপি করে ২০, ৩০, ৪০৩ ৫০ পরপর সাতে হবে।
- এবার সিঁড়িঘরের উপরের অংশ এঁকে নিতে হবে এবং বারান্দার রেলিং-এর মত একই মাপে ছাদের প্যারাপেট অক্ষন করতে হবে
- নিচ তলার জন্য শুধু কলাম, বিষ ও সিঁড়ি দেখা যাবে। উভয় পাশে বাউন্ডারি দেয়াল অঙ্কন করতে হবে।
বেভামেন্টের জন্য প্রবেশ পথ থেকে ঢালটি সিঁড়ির অপর প্রান্ত পর্যন্ত এঁকে নিতে হবে। এখানে বেজমেন্টের উচ্চতা 9-6 রাখা হয়েছে। - সম্পূর্ণ সেকশনটি অঙ্কিত হলে সেকশনটি নিচের চিত্রের (চিত্র-৩.৩.৭) মত দেখা যাবে

চিত্র- বহুতল ইমারতটির সেকশন
হ্যাচ করার জন্য (জব নং-৩.২):
প্রয়োজনীয় হ্যাচ বা যে কোন নামে দেয়ার তৈরি করে এটিকে কারেন্ট লেয়ার করে নিতে হবে।
H লিখে এন্টার বা ড্র টুলবারের আইকনে ক্লিক,
হ্যাচ ডায়লগ বক্সের হ্যাচ এর প্যাটার্ন থেকে ব্রিক সিম্বল (ANSI31 ) সিলেট,
Add Pick Point at ক্লিক,
B যে এরিয়াতে হ্যাচ করতে হবে তার মধ্যে ক্লিক করে প্রিভিউ দেখে ok করতে হবে।
এভাবে চিত্রের মত অংশে ব্রিক হ্যাচ করতে হবে। [এখানে ANSIDI শিক্ষণ বা প্যাটার্ন এবং ক্ষেল-36 নিয়ে ব্যাচ করা হয়েছে ।
- আবার ছাদ, বিম: লিস্টে, ড্রপওয়াল ইত্যাদি কংক্রিটের অংশ হ্যাচ করার জন্য H লিখে এন্টার করে এল হ্যাচ এর প্যাটার্ন থেকে AR-CNC টাইপটি ক্লিক করে Add Pick Point এ ক্লিক করে যে এরিয়াতে হ্যাচ করতে হবে তার মধ্যে ক্লিক করে ফেল- 2 বা 3 নিয়ে প্রিভিউ দেখে ok করতে হবে।
সেকশনে মাপ লিখা
- সেকশনে মাগ লিখার জন্য মেনুবারের ডাইমেনশন (Dimension) থেকে লিনিয়ার (Linear) এ ক্লিক করে যে দুই বিন্দুর দূরত্ব জানা প্রয়োজন সেই দুই বিন্দুতে ক্লিক করতে হবে।
- যে কোনো টুলবারের যে কোনো আইকনে রাইট বা ডান মাউস ক্লিক করলে সব টুল বার দেখাবে, এখান থেকে ডাইমেনশন (Dimension) টুলবারটি এনে স্ক্রিনে সুবিধামত স্থানে সেট করে নিতে হবে।
- অথবা ডাইমেনশন (Dimension) টুলবার থেকে লিনিয়ার ডাইমেনশন (Linear Dimension) ৰা আইকনে ক্লিক করতে হবে। এবার যে দুই বিন্দুর লম বা অনুভূমিক দূরত্ব জানা প্রয়োজন সেই দুই বিন্দুতে ক্লিক করতে হবে।
- একটি মাপ নেয়া হলে পর পর মাপ নেয়ার জন্য কন্টিনিউয়াস ভাইমেনশम (Continuous Dimension) বা আইকনে ক্লিক করতে হবে। এরপর পরবর্তী যে দূরত্ব পর্যন্ত যাগ জানা। প্রয়োজন সেই বিন্দুতে ক্লিক করতে হবে। এভাবে পরবর্তী বিন্দুতে ক্লিক করলে তার পরবর্তী মাগ পাওয়া যাবে।
- প্রতিটি অংশের বা ভাগের মাপ দিতে হবে।
