আজকে আমরা ব্যবহারিকঃ CAD এ বিল্ডিং এর এলিভেশন ও সেকশন অঙ্কন সম্পর্কে আলোচনা করবো। যা আর্কিটেকচার ড্রাফট উইথ ক্যাড – ২ এর প্রথম পত্রের ব্যবহারিক অংশের অন্তর্গত।

Table of Contents
ব্যবহারিকঃ CAD এ বিল্ডিং এর এলিভেশন ও সেকশন অঙ্কন
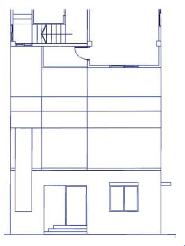
আবাসিক বাড়ির এলিভেশন অঙ্কনের জন্য
এলিভেশন অঙ্কনঃ
এলিভেশন অঙ্কনের জন্য আলাদা করে লেয়ার করে নিতে হবে ।
এলিভেশন লেয়ারকে কাফেট লেয়ার করে,
- একটি ভূমি রেখা এঁকে এর উপর। কক্ষের প্ল্যান-এর প্রান্ত বিন্দুগুলো থেকে অর্থো অন করে লম্ব রেখা আঁকতে হবে।
- ভূমি রেখা থেকে 1′ – 3″ প্লিস্থ লেভেল অফসেট করতে হবে।
- এভাবে প্লিস্থ লেভেল রেখা থেকে 2 – 6″ সিল লেভেল, 7″ -0″ লিষ্টেল লেভেল, 10′-0″ ফ্লোর লেভেল ও 12″ – 6″ প্যারাপেট লেভেল অফসেট করতে হবে।
রেখাসমূহ টানা হলে এবং অফসেট করা হলে চিত্রানুরূপ (চিত্র) দেখা যাবে।

- এখন ট্রিম কমান্ড নিয়ে অপ্রয়োজনীয় অংশ কেটে ফেলে চিত্রানুরূপ অঙ্কন করতে হবে (চিত্র)।
- লাইন কমান্ড দিয়ে ধাপগুলো অঙ্কন করতে হবে।
ট্রিম করা হলে এবং রেখাসমূহ টানা হলে চিত্রানুরূপ (চিত্র) দেখা যাবে।

জানালার জন্য Elevation Win লেয়ার তৈরি করে এই লেয়ারকে কারেন্ট লেয়ার করে নিতে হবে,
- এবার 2″ করে চিত্রানুরূপ (-১০.১.৩) অফনেট করে লাইনগুলোকে লেয়ার প্রপার্টিজ ম্যানেজার বক থেকে Elevation Win লেয়ায়ে নিতে হবে।
- সানশেডের জন্য 6″ করে অফসেট করতে হবে।
- পাশের সানশেডের জন্য সরে মালেকের শেষ বিশ্বয় থেকে বাইরের দিকে রেখা টানতে হবে।
- আবার দেয়ালের রেখা থেকে 20° অফসেট করতে হবে (চিত্র-১০.৯. ।
- ফ্লোর বা হাসের এ বোঝানোর জন্য হাসের লেভেলের রেখাকে 5″ অফসেট করতে হবে।
- প্লিস্থ লেভেলেও অনুরূপভাবে এন্ড দেয়া যেতে পারে।
- প্লিস্থ লেভেলে এ না দিতে চাইলে অতিরিক্ত অংশ ট্রিম করে দিতে হবে।

- এবার জানালা স্লাইডিং বোঝানোর জন্য ট্রিম করে চিত্রানুরূপ (চিত্র) করাতে হবে।
- সানশেডের জন্য অনুরূপভাবে ট্রিম করে সম্মুখ ও পাশের সানশেড তৈরি করতে হবে।

- নিচ তলার ফ্লোর রেখার উপর উপরে ফ্লোরের কক্ষের প্ল্যান-এর প্রাবি ভনো থেকে অর্থো অন করে লম্ব রেখা আঁকতে হবে।
- এভাবে ফ্লোর রেখা থেকে T লিস্টেল লেভেল, 10″ ফ্লোর লেভেল ও 12″ – 6″ প্যারাপেট লেভেল অফসেট করতে হবে।
রেখাসমূহ টানা হলে এবং অফসেট করা হলে চিত্রানুরূপ (চিত্র) দেখা যাবে।
- নিচ তলার জানালা কপি করে মাউস উপরের দিকে সরিয়ে (অর্থ করে) উপরের তলায় 10′-0″ উপরে বলতে হবে।
- এবার ফ্লোর রেখা থেকে 3′-0″ বারান্দা লেভেল, 3″ হান্ডল, এর পরে 6″ ফাকা, আবার 11/2″ রেলিং ও 4″ ফাকা এভাবে 3 টি রেলিং অফসেট করে আঁকতে হবে।
রেলিংসমূহ তৈরি হলে এবং অফসেট করা হলে চিত্রানুরূপ (চিত্র) দেখা যাবে।

• প্রয়োজনীয় অংশ গাঢ় করা হলে এলিভেশনটি চিত্রানুরূপ (চিত্র) ন্যায় দেখা যাবে।
এলিভেশন হ্যাচ করা
বারান্দা হ্যাচ করার জন্য Hatch লেয়ার তৈরি করে এই লেয়ারকে কারেন্ট লেয়ার করে নিতে হবে। বারান্দার এক পাশের দেয়াল 15″ অফসেট করে নিতে হবে। চ্যাফার করে ড্রপ ও ফ্লোরকে চিত্রের ন্যায় করতে হবে। এটি বারান্দাকে Emphasis করার জন্য করা হয়েছে।
Command: h 4 বা ড্র টুল বারের আইকন | এ ক্লিক করতে হবে ।
একটি Hatch & Gradient ডায়লগ বক্স আসবে (চিত্র),
- এখান থেকে হ্যাচের ধরন ঠিক করার জন্য প্যাটার্ন (Pattern) থেকে বা পাশের ছোটো পিক বক্সে ক্লিক করতে হবে। স্ক্রিনে আরেকটি Hatch pattern palette ডায়লগ বক্স (চিত্র- ১০.২.২) আসবে,
- সেখান থেকে সুবিধা মত হ্যাচ টাইপ (ARBRSTD) পছন্দ করে Angle 0 এবং Scale=1 লিখে দিতে হবে।
- এবার Add Pick Point এর পিক বক্সে ক্লিক করলে বারান্দার যে অংশে হ্যাচ করতে হবে সেই এরিয়ার মধ্যে ক্লিক করতে হবে। (উল্লেখ্য যে আবদ্ধ এরিয়া ছাড়া হ্যাচ হবে না
- এরিয়া সিলেক্ট হলে ডটেড দেখাবে, এবার প্রিভিউতে (Preview) ক্লিক করে হ্যাচ কেমন হবে দেখে নিতে হবে, ঠিক থাকলে ok করে কমান্ড থেকে বের হতে হবে।


জানালা হ্যাচ করার জন্য,
Command: h – যা ড্র টুল বারের আইকন এ ক্লিক করে Hatch & Gradient ডায়লগ বক্স আসলে Gradient এ ক্লিক করতে হবে (চিত্র)।
- গ্রেডিয়েন্ট বক্স থেকে One color বা Two color পছন্দ করে শেড কেমন হবে সেটিতে ক্লিক করে ঠিক করে নিতে হবে।
- এবার Add Pick Point এর পিক বক্সে ক্লিক করলে জানালার যে অংশে হ্যাচ করতে হবে সেই এরিয়ার মধ্যে ক্লিক করতে
হবে। - এবার প্রিভিউতে (Preview) ক্লিক করে হ্যাচ কেমন হবে দেখে নিতে হবে, ঠিক থাকলে ok করে কমান্ড থেকে বের হতে হবে।


সানশেড করার জন্য হ্যাচ কমান্ড দিয়ে Hatch & Gradient ডায়লগ বক্স থেকে,
- হ্যাচের ধরণ ঠিক করার জন্য গ্যাটার্ন (Pattern) থেকে বা পাশের ছোটো গিক বক্সে ক্লিক করতে হবে। স্ক্রিনে আরেকটি Hatch pattern palette ডায়লগ বক্স আসবে,
- সেখান থেকে সুবিধামত হ্যাচ টাইপ (ANSI31) পছন্দ করে Angle 45° এবং Scale = 24 বা 36 লিখে দিতে হবে।
- এবার Add Pick Point এর পিক বক্সে ক্লিক করলে সানশেডের মধ্যে ক্লিক করতে হবে।
- এবার প্রিভিউতে (Preview) ক্লিক করে হ্যাচ কেমন হবে দেখে নিতে হবে, ঠিক থাকলে ok করে কমান্ড থেকে বের হতে হবে।
- হ্যাচ ও শেড করে এলিভেশন করা হলে এলিভেশনটি নিচের চিত্রের ন্যায় দেখা যাবে।

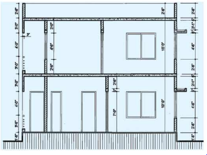
কক্ষটির অংকিত Plan থেকে Section (সেকশন) অঙ্কন
সেকশন অঙ্কনের জন্য Section লেয়ার তৈরী করে এই লেয়ারকে কারেন্ট লেয়ার করে নিতে হবে,
- কক্ষের প্ল্যান এর সুবিধাজনক স্থান বরাবর দেয়াল, দরজা, জানালা, বারান্দা ইত্যাদি উপাদান কাটা পড়ে সেই বরাবর সেকশন লাইন টেনে নিতে হবে |
- সেকশন লাইনটিতে সেকশনের পর কোন দিকে। দেখতে হবে সেই দিকে দিক নির্দেশক চিহ্ন দিতে হবে |
- একটি ভূমি রেখা এঁকে এর উপর সেকশন লাইন কক্ষের প্ল্যান-এর যে বিন্দু গুলোকে ছেদ করে সেখান থেকে অর্থো অন করে সব রেখা আঁকতে হবে ।
ভূমি রেখা থেকে 1″ – 6″ প্লিস্থ লেভেল অফসেট করতে হবে।


- এভাবে প্লিস্থ লেভেল রেখা থেকে 2′-6″ সিল লেভেল, 7-0″ সিস্টেল লেভেল, 9′-7″ ফ্লোর বা সিলিং লেভেল, 5″ ফ্লোর থিকনেস ও 12′-6″ প্যারাপেট লেভেল অফসেট করতে হবে।
- একই ভাবে উপরের কাজের জন্যও অফসেট করতে হবে।
রেখাসমূহ টানা হলে এবং ট করা হলে চিত্রানুরূপ দেখা যাবে।
- এখন ট্রিম কমান্ড দিয়ে অপ্রয়োজনীয় অংশ কেটে ফেলে চিত্রানুরূপ অফসেট করতে হবে।
- লাইন কমান্ড দিয়ে বা অফসেট করে সাসপেন্ড অঙ্কন করতে হবে।
ট্রিম করা হলে এবং রেখাসমূহ টানা হলে চিত্রানুরূপ লেখা যাবে।
- এবার জানালা ও দরজার জন্য 2″ করে চিত্রানুরূপ অফসেট করতে হবে।
- উপরের ও নিচের জানালার এলিভেশনের জন্য এলিভেশন থেকে কপি করে এনে নির্দিষ্ট বেজ পয়েন্ট ধরে বসিয়ে দিতে হবে।
- ড্রপ ওয়ালের জন্য প্রভাসের 3′ করে অফসেট করতে হবে। লিন্টেলের জন্য 6″ অফসেট করতে হবে।
- পিস্থ লেভেলের নিচের অংশ ট্রিম করতে হবে।
- এখন ট্রিম কমান্ড দিয়ে অপ্রয়োজনীয় অংশ কেটে ফেলে চিত্রানুরূপ জানালা ও দরজার সেকশন অঙ্কন করতে হবে।
- Circle কমান্ডের সাহায্যে বারান্দার রেলিং অঙ্কন করতে হবে।
Commend of টুল বালো আইকন এ ক্লিক করতে হবে।
Specify center point for circle or 3P/2P/T): এরিয়ার যে কোনো বিন্দুতে ক্লিক,
Specify radius of circle or (Diameter): 11.5″, তৈরি হল ।
একই ভাবে রেলিং এ 0.75 করে ব্যাসার্ধ নিয়ে বৃত্ত অঙ্কন করতে হবে।
এবার বৃত্ত গুলোকে মুখ ও কপি করে সেকশনে বসাতে হবে।
বড় বৃত্তটির উপর পর্যন্ত উষ্ণ ফ্লোর থেকে 34-0″, ১ম ছোটো মুখটি বড় মৃত থেকে 6″ দিচে এর পরে জলোর প্রতিটি মধ্যে 4″ করে ফ করে ফলাতে কনে (-1000)।
নিচের 5″ দেয়াল চিত্রের মতো করে তৈরি করতে হবে।
বারান্দা অঙ্গিত হলে চিত্রের (- ১০.৩.৫) ন্যায় দেখাবে।




সেকশন হ্যাচ করা
হ্যাচ করার জন্য Hatch লেয়ারকে কারেন্ট লেয়ার করে নিতে হবে,
- হ্যাচ করার জন্য একটি লব রেখা টেনে কপি বা অননেট ক্ষমার দিয়ে চিত্রানুরূপ লাইনসমূহ অঙ্কন করতে হবে।
- অথবা হ্যাচ কমান্ডের সাহায্যে করা যায়। সেক্ষেত্রে সামনে, পিছনে ও নিচে লাইন টেনে। অক্সিয়াটিকে পার করে নিয়ে হ্যাক করতে হবে।
ভূমি ও প্লিস্থের নিচে হ্যাচ করার কমান্ড
Command: h বাটুল বা পাকন | ] এ ক্লিক করতে হবে। একটি Hitch & Gradient বক্স আসবে।
- এখান থেকে হ্যারে ধরণ ঠিক করার জন্য প্যাটার্ন (Paem) থেকে বা পাশের ছোটো পিক ৰঙ্গে ক্লিক হবে। Hatch pattern palette ডার বক্স আসবে,
- লেখান থেকে সুবিধামত হ্যাক টাইপ (ANSL31) পছন্দ করে Angle 45° এবং Scale 24 বা 36 লিখে দিতে হবে।
- এবার Add Pick Point এর ক্লিক করলে যে অংশে কাচ করতে হবে নেই এরিয়ার মধ্যে ক্লিক করতে হবে।
- এরিয়া সিলেক্ট হলে দেখান, এবার বিভি (Preview) করে ম্যাচ কেমন হবে দেে নিতে হবে, ঠিক থাকলে ok করে কলাত থেকে বের হতে হবে (চিত্র)।
- এখানে দেয়ালের ম্যাচ করতে হবে। দেয়ালের ক্ষেত্রে Angle সুবিধার ক্ষেন ঠিক করে নিতে হবে। ফ্লোরেও ফ্যাচ করার জন্য হ্যাচ টাইপ (AR-CONC) Sonic-1 তি হবে (চিত্র)।
- সম্পূর্ণ হ্যাচ হয়ে গেলে, ড্রয়িং টাইটেল লিখলে ও প্রয়োজনীয় ছেদিত অংশ গাঢ় করলে চিত্রের ন্যায় (চিত্র) সেকশনটি অঙ্কিত হবে।
- এবার Dtext বা dt লিখে এন্টার করে, টেক্সট এর উচ্চতা লিখে এন্টার, রোটেশন অ্যাঙ্গেল এর মান 0 লিখে এন্টার প্রয়োজনীয় টেক্সট লিখে !! (দুইবার এন্টার করলে কমান্ড থেকে বের হয়ে আসবে)। এভাবে ডুরিং টাইটেল লিখতে হবে (চিত্র)।


ডাইমেনশন দেয়ার জন্য ডাইমেনশন লেয়ার তৈরি করে কারেন্ট লেয়ার করে নিতে হবে। এবার,
- ডাইমেনশন টুলবারের Linear টুল ক্লিক করে প্রাপ অন করে নিচে ভূমি থেকে পিস্থ পর্যন্ত দুই বিন্দুতে ক্লিক করতে হবে ।
- এরপর Contimous Dimension এ ক্লিক করে পরপর প্রতিটি বিন্দুতে যেখান থেকে যেই পর্যন্ত মাপ নেয়া দরকার সেই বিন্দুতে ক্লিক করতে হবে।
- সকল অংশের যাগ লিখা হলে নিচের চিত্রের (চিত্র) মত দেখা যাবে।

